Description

Within the tranquility just beyond the hustle and bustle of the city, we offer this charming house on Koninginnestraat for sale. A surprising 3-bedroom apartment with a roof terrace, located within walking distance of Dordrecht Station and Dordrecht's charming historic city center. From here, you'll experience the convenience of the city center, park your car right outside (with a permit), and have everything within easy reach.

The house features classic furnishings, including the bathroom and kitchen, as well as numerous stained-glass windows. The exterior woodwork was repainted in 2024. The house boasts two bedrooms, an en-suite living room, a spacious bathroom, and a lovely roof terrace.

Want to live in the city with all amenities within easy reach? Then this is your chance! Contact us soon to schedule a viewing and discover the charm of this beautiful house for yourself. 

LAYOUT
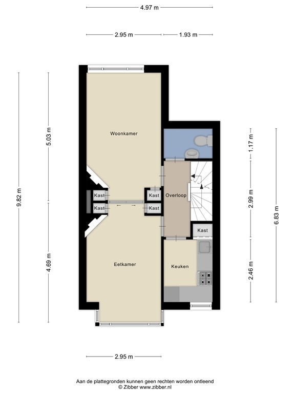
Ground floor: entrance with meter cupboard and stairs to the first floor

First floor: The landing includes a toilet and stairs to the second floor. It also provides access to the living room and kitchen. Spacious, inviting living room en suite with ornamental ceiling and a large bay window with stained glass at the front of the house. This entire floor has stucco walls and laminate flooring.
The kitchen is located at the front of the house and is equipped with the following built-in appliances: refrigerator, freezer, gas cooktop, extractor hood, dishwasher, and oven.

Second floor: Landing with access to the rooms, a built-in cupboard with the washing machine connection, and the combination boiler (Intergas HR from 2011) located in the stairwell. Two bedrooms, bathroom with a large bathtub, shower, and vanity. Spacious and sunny balcony.

GOOD TO KNOW
- Delivery in consultation, can be done quickly
- Energy label: D
- Largely double-glazed
- Lovely and spacious roof terrace facing southeast
- Exterior painted in 2024
- Sleeping homeowners' association (VvE), without monthly contribution, but registered with the Chamber of Commerce
- Full ownership

Still interested? Make an appointment today!

FINALLY
The information provided has been compiled with care; however, no rights can be derived from its accuracy or completeness. All information provided should be considered an invitation to make an offer or to enter into negotiations.

The Measurement Instructions are based on the NEN2580 standard. The Measurement Instructions are intended to apply a more uniform measuring method to provide an indication of the usable area. The Measurement Instructions do not completely rule out differences in measurement results, for example, due to differences in interpretation, rounding, or limitations in performing the measurement.

Features