Beschrijving
Gelegen in het hart van Rotterdam-Noord biedt deze woning niet alleen een uitstekende bereikbaarheid, maar ook een privé dakterras – de perfecte plek om te ontspannen na een drukke dag in de stad.
OVER DE WONING
Binnen valt meteen de fraai afgewerkte zwarte keuken op – strak, modern en klaar voor fijne kooksessies. De volledig houten parketvloer loopt als een basis door de hele woning, wat zorgt voor een stijlvolle, samenhangende look. De ruime badkamer met bad en douche voelt als een mini-spa: alles wat je nodig hebt voor een ontspannen start of afsluiting van de dag.
Met drie volwaardige slaapkamers is dit huis ideaal voor jonge gezinnen die een mooie, praktische woning zoeken in de stad. Iedereen heeft z’n eigen plek, terwijl de woonkamer uitnodigt tot samen zijn.
Geen gedoe met erfpacht – dit appartement staat op eigen grond. Verdeeld over twee verdiepingen biedt deze ruime dubbele bovenwoning van 108 m² alle ruimte die je zoekt. Licht, lucht en een fijne indeling maken dit een plek waar je direct thuis bent.
De kers op de taart: een heerlijk zonnig dakterras waar je de hele zomer van geniet. Ontbijt in de ochtendzon, borrel in de avond – hier heb je het allebei.
PERFECTE LOCATIE – ALLES DICHTBIJ
Wonen aan de Bergweg betekent dat je midden in het bruisende hart van Rotterdam-Noord zit. De buurt barst van de gezellige koffietentjes, boetieks en eetzaakjes, terwijl je binnen een paar minuten op de fiets in het centrum bent. Met tram, bus en station Rotterdam Noord om de hoek ben je bovendien supersnel onderweg – of je nu naar werk gaat, de stad uit moet of spontaan een dagje weg plant.
Met de A20 en A13 op korte afstand rijd je ook met de auto zo richting Den Haag, Delft of de kust. En parkeren? In de directe omgeving is het geregeld met met een parkeervergunning. Die vraag je aan bij de Gemeente Rotterdam.
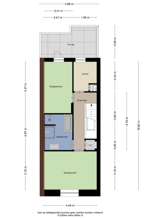
INDELING
Begane grond: voordeur met brievenbus en trapopgang naar tweede etage
Tweede etage: binnenkomst in het trappenhuis met plek voor jassen en schoenen. Binnenkomst in de open keuken met aangrenzend eetgedeelte en woonkamer. in het trappenhuis het toilet.
Derde etage: overloop met aangrenzend alle slaapkamer en badkamer. De slaapkamer aan de achterzijde geeft ook toegang tot het dakterras.
GOED OM TE WETEN
- Bouwjaar 1896
- Fundering hersteld in 1999
- Fraaie gevel
- Dubbele bovenwoning met 107m² woonoppervlakte
- Energielabel D
- Cv HR combi 2019
- Intern gerenoveerd in 2019
- Dak vernieuwd in 2025
- VvE-bijdrage € 148,80 per maand
- Oplevering in overleg
- Eigen grond
- In de koopovereenkomst zal er gezien het bouwjaar een ouderdomsclausule worden opgenomen.
Nieuwsgierig geworden? Maak vandaag nog een afspraak!
TOT SLOT
De gegeven informatie is met zorgvuldigheid opgesteld, aan de juistheid en volledigheid kunnen echter geen rechten worden ontleend. Alle verstrekte informatie moet beschouwd worden als een uitnodiging tot het doen van een aanbod of om in onderhandeling te treden.
De Meetinstructie is gebaseerd op de NEN2580. De Meetinstructie is bedoeld om een meer eenduidige manier van meten toe te passen voor het geven van een indicatie van de gebruiksoppervlakte. De Meetinstructie sluit verschillen in meetuitkomsten niet volledig uit, door bijvoorbeeld interpretatieverschillen, afrondingen of beperkingen bij het uitvoeren van de meting.
Plattegronden
179505379_1590908_bergw_begane_grond_first_design_20251119_97e355.jpg
179505379_1590908_bergw_eerste_verdiepi_first_design_20251119_c32230.jpg
179505379_1590908_bergw_tweede_verdiepi_first_design_20251119_7834ff.jpg
179505379-291774061-se-143770537-1763551613678.png
179505379-291800797-se-143770537-1763551613678.png
179505379-291801199-se-143770537-1763551613678.png