Beschrijving
Welkom bij dit fantastische appartement gelegen aan de Mariniersweg 383 in het bruisende centrum van Rotterdam. Een unieke kans voor starters, jonge gezinnen en (oudere) stellen om te genieten van het stadsleven met alle iconen van Rotterdam binnen handbereik. De woning is gelegen in een levendige omgeving en heeft veel te bieden!
WONEN OP EEN TOP LOCATIE
Dit appartement uit 1989 met een woonoppervlakte van 93m2 biedt voldoende ruimte voor je dagelijkse bezigheden. Het brede balkon met vrij uitzicht is de perfecte plek om te ontspannen na een drukke dag terwijl je geniet van het prachtige uitzicht over het Oosten van Rotterdam. Is het balkon niet voldoende? Geen probleem, want op dezelfde etage bevindt zich het riante dakterras van het complex, met voldoende ruimte om te zitten, tot rust te komen en te genieten van de Kubuswoningen, Willemsbrug, Het Witte Huis, Het Potlood, station Blaak, de Bibliotheek en zicht op de Markthal.
Deze woning is ideaal gelegen voor degenen die graag actief zijn. Of je nu wilt genieten van de vele restaurants, winkels en culturele activiteiten in de buurt of liever een wandeling maakt langs de nabijgelegen oevers van de rivier of havens, er is voor ieder wat wils.
Wil je wonen in het hart van de stad met alle voorzieningen binnen handbereik? Dan is dit jouw kans! Neem snel contact met ons op om een bezichtiging in te plannen en ontdek zelf de charme van deze prachtige woning.
BIJZONDERHEDEN
- Erfpacht afgekocht tot 1-9-2037, einddatum erfpacht 31-8-2086
- Locatie in het centrum
- Verwarming en warm water middels stadswarmte
- Woning bevat berging op de begane grond
- Oplevering in overleg, kan snel
- VVE kosten €197 per maand
- Niet-zelfbewoningsclausule en ouderdomsclausule van toepassing
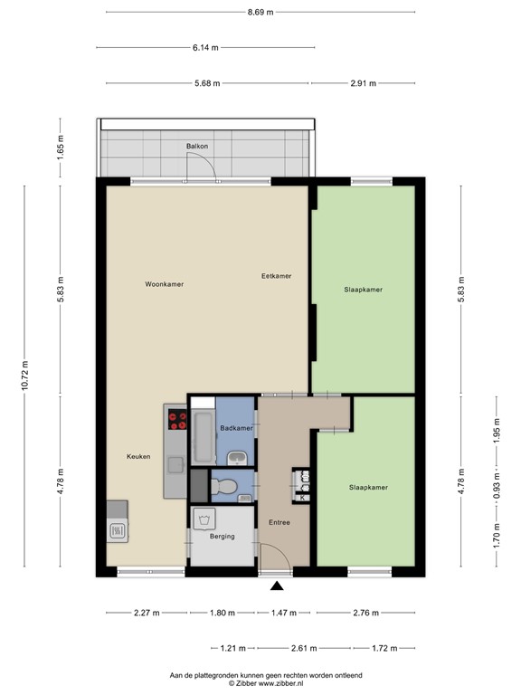
INDELING
- Begane grond: bellentableau met brievenbussen en trapopgang naar de lift en trappenhuis. Voor de mindervalide personen is er ook toegang tot de lift via de achterzijde van de entree op gelijk niveau
- 8e etage: Toegang lift, trappenhuis en gezamenlijk dakterras. Vanuit de lift loopt u over de galerij naar de woning op nummer 383. U komt binnen in de 'L-vormige' gang, met ruimte voor garderobe. Daarna aan de rechterkant de meterkast met vernieuwde schakelkast, aan de linkerkant toilet en badkamer en toegang tot de woonkamer. Verder aan de rechterkant toegang tot beide ruime slaapkamers (13m² en 17m²). De woonkamer (33m²) is ruim en beidt toegang tot het balkon. Er is een open verbinding met de keuken, voorzien van inbouwapparatuur. Naast de keuken in een aparte bergruimte met wasmachineaansluiting.
Nieuwsgierig geworden? Maak vandaag nog een afspraak!
TOT SLOT
De gegeven informatie is met zorgvuldigheid opgesteld, aan de juistheid en volledigheid kunnen echter geen rechten worden ontleend. Alle verstrekte informatie moet beschouwd worden als een uitnodiging tot het doen van een aanbod of om in onderhandeling te treden.
De Meetinstructie is gebaseerd op de NEN2580. De Meetinstructie is bedoeld om een meer eenduidige manier van meten toe te passen voor het geven van een indicatie van de gebruiksoppervlakte. De Meetinstructie sluit verschillen in meetuitkomsten niet volledig uit, door bijvoorbeeld interpretatieverschillen, afrondingen of beperkingen bij het uitvoeren van de meting.
Plattegronden
171991870_1548589_marin_appartement_first_design_20250428_2c96ae.jpg
171991870_1548589_marin_berging_first_design_20250428_e85ba2.jpg
171991870-278694853-se-128762815-1745874718763.png
171991870-278713564-se-128762815-1745874718763.png