Koop: Mariniersweg 383, 3011 NM Rotterdam
Koop: Mariniersweg 383, 3011 NM Rotterdam
Koop: Mariniersweg 383, 3011 NM Rotterdam
Topper A

Mariniersweg 383, 3011 NM Rotterdam

€ 445.000,- k.k.

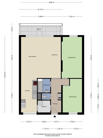
Beschrijving Mariniersweg 383

Welkom bij dit fantastische appartement gelegen aan de Mariniersweg 383 in het bruisende centrum van Rotterdam. Een unieke kans voor starters, jonge gezinnen en (oudere) stellen om te genieten van het stadsleven met alle iconen van Rotterdam binnen handbereik. De woning is gelegen in een levendig...

Kenmerken

Type object Appartement, tussenverdieping
Bouwperiode 1989
Aangeboden sinds Woensdag 7 mei 2025

Mariniersweg 383 bekijken?

Wij plannen graag een bezichtiging met je in. Tijdens de bezichtiging vertelt een makelaar alles wat je wilt weten.